€ 495.000,- k.k.
Twee-onder-een-kapwoning uit de jaren ’30 met openslaande deuren naar een ruime achtertuin. De woning is gedateerd maar heeft veel potentie doordat hij geheel onderkelderd is.
In de omgeving bevinden zich diverse voorzieningen als een basisschool, winkels, supermarkten en horecagelegenheden. Voor een goede verbinding met de uitvalswegen en de bushalte om de hoek, ligt de woning ook zeer centraal.
Indeling:
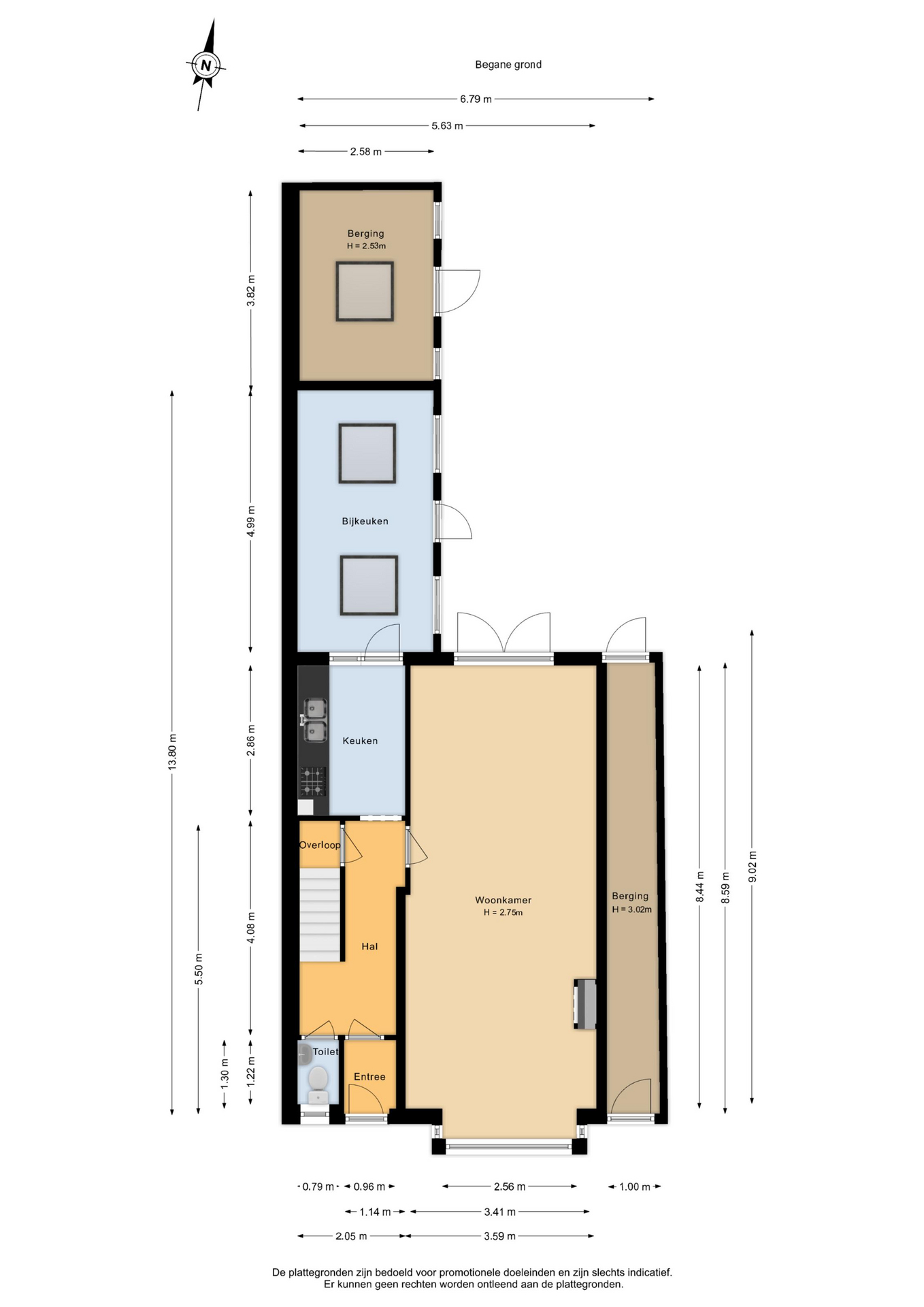
Begane grond:
entree / hang met toilet / vanuit de gang heb je toegang tot de keuken met bijkeuken voorzien van daglicht door lichtkoepels in het platte dak / de grote, lichte woonkamer met stenen schouw en erker en openslaande deuren naar de diepe tuin met achterom / achter de bijkeuken is nog een extra berging annex hobbyruimte / de achterom is overdekt en ook geschikt om fietsen droog te stallen.
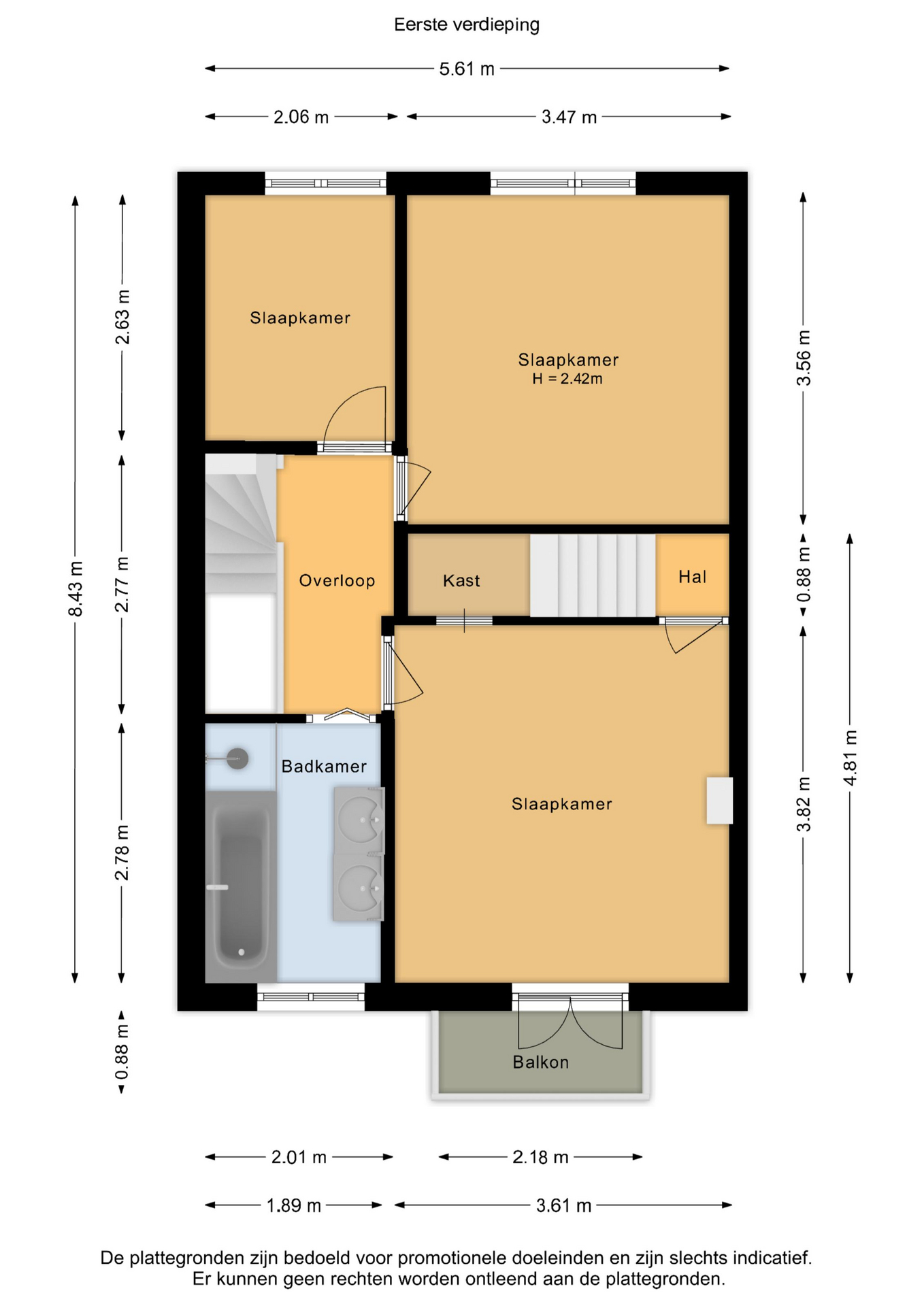
Eerste verdieping:
drie slaapkamers, twee grotere en รฉรฉn kleinere slaapkamer. Via รฉรฉn van de grootste slaapkamers aan de voorzijde van de woning zit een deur naar de trap naar de zolder en een deur naar het balkon gelegen op het zuiden. Ook bevindt er een badkamer met ligbad, douche en dubbele wastafel.
Zolder:
Met een vaste trap kun je naar de tweede verdieping met bergruimte en daglicht middels een dakkapel.(kamer mogelijk)
Kelder:
De woning is geheel onderkelderd met provisieruimte en hobby kelder.
Bijzonderheden:
* Mooie authentieke details;
* Woonoppervlakte 121 m2;
* Energielabel D;
* Aanvaarding: kan direct;
* Vraag gerust naar de inhoud van bepaalde voorwaarden/clausules zoals de ouderdomsclausule, asbestclausule en niet-zelfbewoningsclausule welke van toepassing zijn op deze verkoop.
- 121 m2
- 280 m2
- 3
Kenmerken Muntweg 22
Overdracht
| Vraagprijs | € 495.000,- k.k. |
|---|---|
| Aanvaarding | In overleg |
Oppervlaktes en inhoud
| Perceel oppervlakte | 280 m2 |
|---|---|
| Woonoppervlakte | 121 m2 |
| Inhoud | 622 m3 |
Bouw
| Soort | Eengezinswoning |
|---|---|
| Bouwvorm | Bestaande bouw |
| Bouwjaar | 1925 |
| Dak type | Samengesteld dak |
| Isolatievormen | Dubbelglas |
| Energielabel | D |
Indeling
| Aantal verdiepingen | 4 |
|---|---|
| Aantal kamers | 4 |
| Aantal slaapkamers | 3 |
| Aantal badkamers | 1 |
Maandlasten
Ligging Muntweg 22
Voorzieningen
Centraal gelegen informatie over de buurt
Aantal inwoners
In de gemeente
173.557
Leeftijd
in percentages van totaal
Huishoudsamenstelling
in percentages van totaal
56%
20% NL
19%
20% NL
25%
20% NL