Ga naar inhoud

Te koop: appartement Regulierstraat 80 6511 DS Nijmegen

Beschikbaar

Bezichtiging plannen

€ 365.000,- k.k.

Benedenwoning met tuin in het centrum van Nijmegen

Deze benedenwoning met achtertuin ligt midden in het centrum van Nijmegen. De woning heeft een zonnige tuin op het westen, een eigen berging in de onderbouw en maakt deel uit van een kleinschalig en goed onderhouden complex met een gezonde VvE.
De woning is goed geรฏsoleerd en heeft energielabel C

Ligging
De woning ligt op loopafstand van alle voorzieningen die het centrum te bieden heeft: gezellige cafรฉs, restaurants, winkels en het Kronenburgerpark. Ook Plein 44, de Lange Hezelstraat en het Centraal Station zijn dichtbij.
De Radboud Universiteit en de HAN zijn gemakkelijk per fiets bereikbaar.

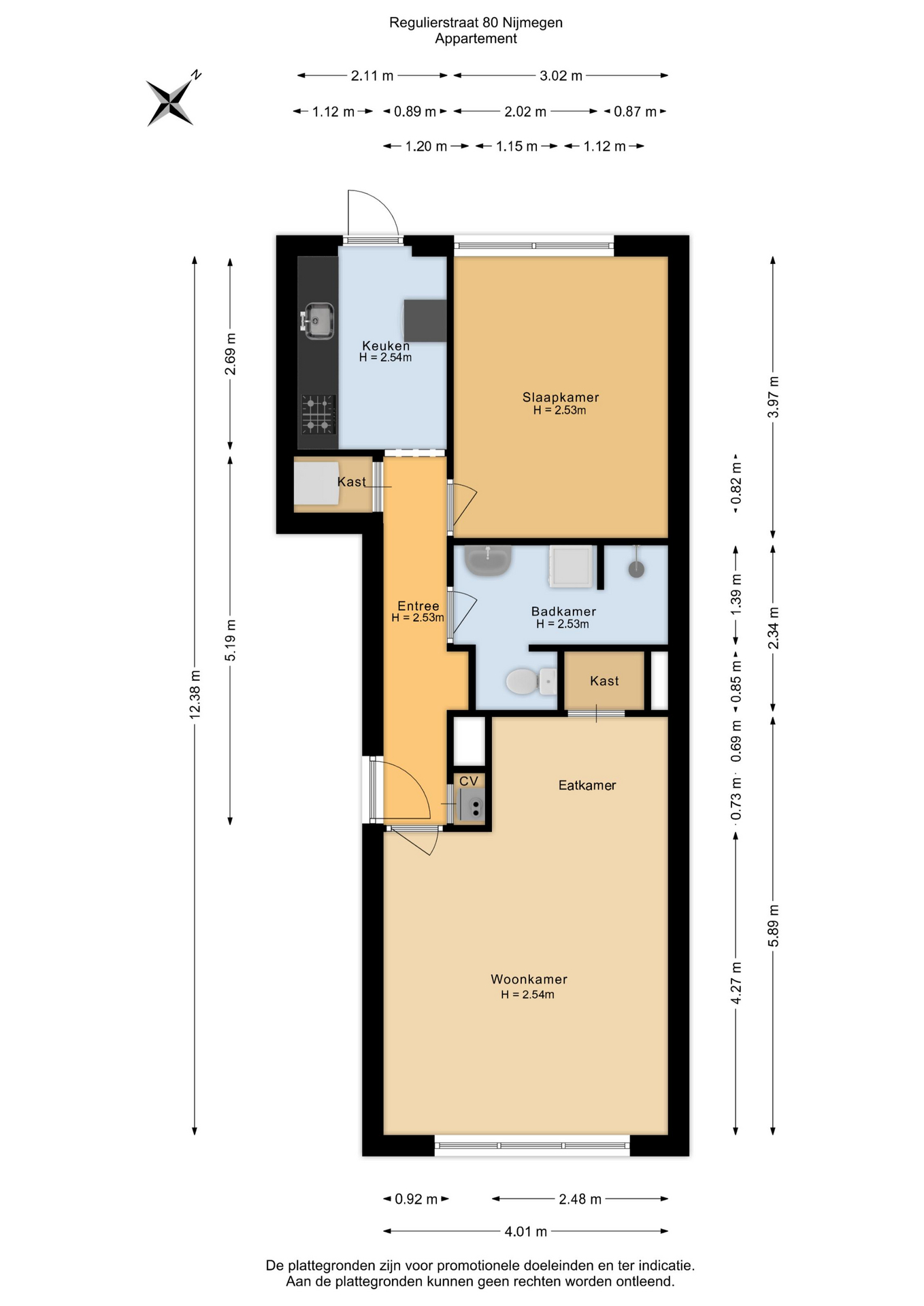
Indeling
Begane grond:
Entree/hal met toegang tot alle vertrekken. Aan de voorzijde bevindt zich de woonkamer met veel lichtinval door de grote, recent vernieuwde kozijnen en een handige inbouwkast.

De badkamer ligt tussen de woonkamer en slaapkamer in en is voorzien van een toilet, inloopdouche, wastafel en aansluitingen voor wasmachine en droger. Indien gewenst kan het toilet worden afgescheiden door het plaatsen van een wand en een deur naar de hal.

Aan de achterzijde bevinden zich de keuken en de slaapkamer. De keuken heeft een rechte opstelling en biedt toegang tot de tuin. De slaapkamer heeft recent vernieuwde kozijnen en is voorzien van een elektrisch rolluik.
De kamer is ruim en biedt voldoende plaats voor een tweepersoonsbed en een grote kast. De achtertuin ligt op het westen en is een rustige plek midden in de stad

In het souterrain is een afsluitbare berging aanwezig met elektriciteitsaansluiting.

Bijzonderheden:
* Bouwjaar: 1982;
* Eigen cv-ketel;
* Gehele woning voorzien van kunststof kozijnen met HR++ beglazing (recent vernieuwd);
* Goed geรฏsoleerd;
* Gezonde en actieve VvE;
* Gebruiksoppervlakte ca. 55 mยฒ
* Achtertuin op het westen.

  • 55 m2
  • 1

Kenmerken Regulierstraat 80

Overdracht

Vraagprijs€ 365.000,- k.k.
AanvaardingIn overleg

Oppervlaktes en inhoud

Woonoppervlakte55 m2
Inhoud173 m3

Bouw

SoortBenedenwoning
BouwvormBestaande bouw
Bouwjaar1982
Dak typeZadeldak
IsolatievormenHR glas
EnergielabelC

Indeling

Aantal verdiepingen1
Aantal kamers2
Aantal slaapkamers1
Aantal badkamers1

Maandlasten

Ligging Regulierstraat 80

Voorzieningen

Centraal gelegen informatie over de buurt

Aantal inwoners

In de gemeente

173.557

Leeftijd

in percentages van totaal

Huishoudsamenstelling

in percentages van totaal

79%

20% NL

17%

20% NL

3%

20% NL

Vergelijkbaar woningaanbod