Ga naar inhoud

Te koop: woonhuis Bessenmaat 52 6852 LJ Huissen

Hermsen Garantiemakelaars Huissen
Neem contact met mij op

Verkocht

€ 429.500,- k.k.

Bessenmaat 52 Huissen

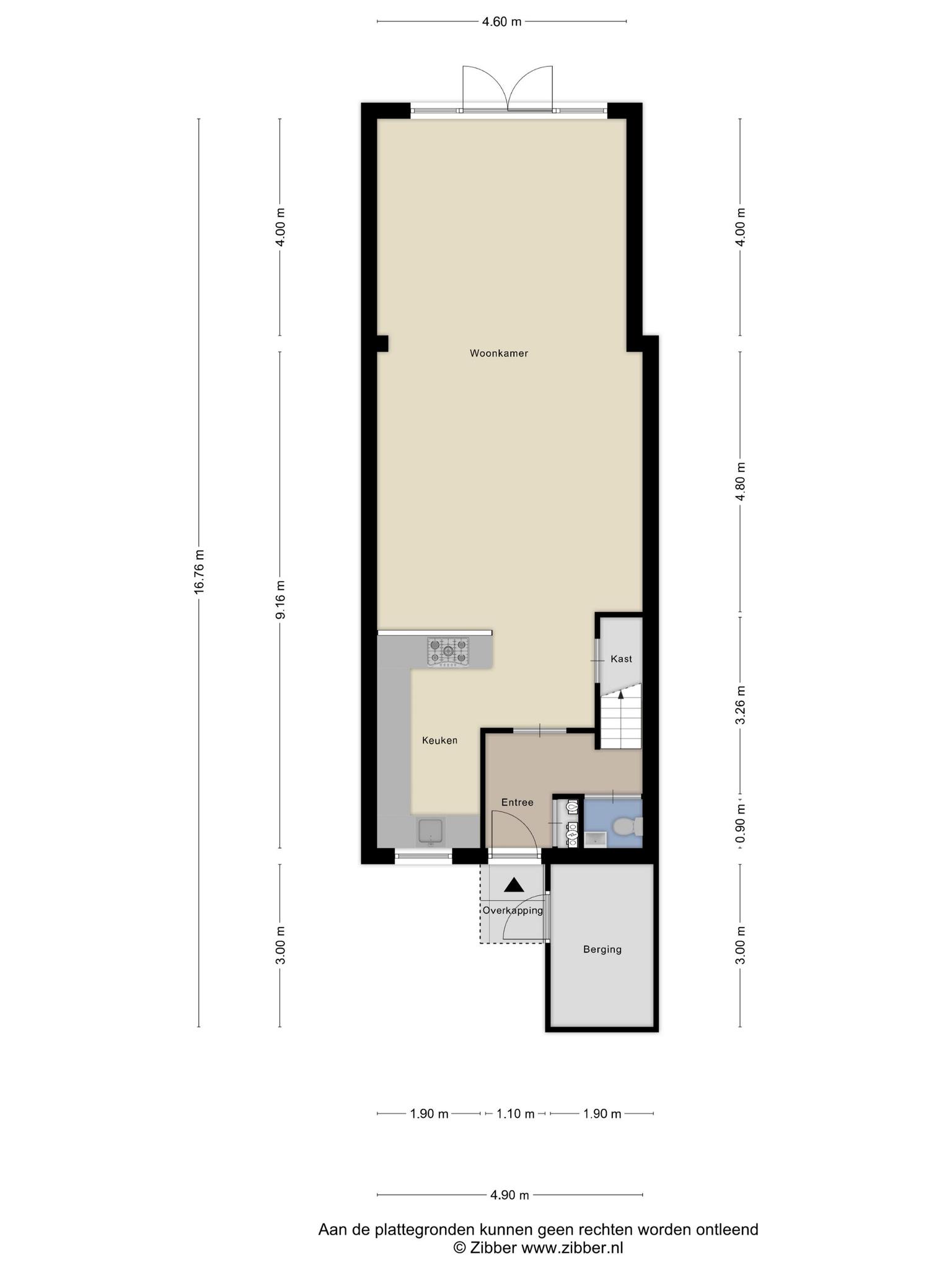
Luxe afgewerkte tussenwoning met uitgebouwde woonkamer (ca. 4 meter) en zonnige tuin op het zuiden met houten overkapping en sauna. De woning is gelegen in woonwijk “De Zilverkamp” nabij winkelcentrum de Brink, basisscholen en openbaar vervoer.

Indeling: Entree / hal / meterkast (9 groepen + aardlekschakelaar + glasvezel) / toilet met inbouwreservoir / uitgebouwde woonkamer (ca. 4 meter) met plavuizenvloer voorzien van vloerverwarming, provisiekast en openslaande deuren naar de achtertuin / luxe hoogglans witte keuken voorzien van Siemens vaatwasser, Siemens koelkast met hyper fresh, magnetron, oven, vriezer, 5 pits-gasfornuis, Siemens afzuigkap en grijs composiet aanrechtblad / zonnige achtertuin op het zuiden met buitenkraan, buitendouche, houten overkapping en sauna.

1e verdieping: Overloop met vaste trap naar 2e verdieping / ouderslaapkamer met laminaatvloer, dakkapel met elektrisch rolluik en airconditioning / slaapkamer met laminaatvloer, dakkapel met elektrisch rolluik en airconditioning / slaapkamer met laminaatvloer / luxe badkamer met vloerverwarming voorzien van douche met glazen schuifdeur, regendouche en handdouche, 2e toilet met inbouwreservoir, wastafelmeubel en design radiator.

2e verdieping: Voorzolder met werkhoek, opstelling voor wasmachine en droger en vaste kast / slaapkamer annex werkkamer met keukenblok, airconditioning, dakkapel, dakvenster en stookruimte (Intergas CV anno 2022).

* Bouwjaar 1983
* Perceeloppervlakte 153 mยฒ
* Woonoppervlakte circa 125 mยฒ
* Inhoud circa 375 mยณ

Bijzonderheden:
* De woonkamer is geheel voorzien van plavuizenvloer met vloerverwarming;
* Begane grond is 4 meter uitgebouwd met openslaande deuren naar zonnige tuin op het zuiden;
* Elektrisch zonnescherm;
* Drie kamers voorzien van airconditioning;
* Luxe hoogglans witte keuken v.v. alle inbouwapparatuur;
* Zolder met laminaatvloer, airconditioning, dakvenster en dakkapel aan de voorzijde;
* Houten overkapping in de achtertuin met sauna en deur naar openbaar groen;
* De woning is voorzien van 14 zonnepanelen die circa 2000 kilowatt per jaar opwekken;
* Deze woning is modern en luxe afgewerkt en zo te betrekken!

  • 125 m2
  • 153 m2
  • 4

Kenmerken Bessenmaat 52

Overdracht

Vraagprijs€ 429.500,- k.k.
AanvaardingIn overleg

Oppervlaktes en inhoud

Perceel oppervlakte153 m2
Woonoppervlakte125 m2
Inhoud375 m3

Bouw

SoortEengezinswoning
BouwvormBestaande bouw
Bouwjaar1983
Dak typeZadeldak
IsolatievormenDakisolatie, Muurisolatie, Vloerisolatie, Dubbelglas
EnergielabelA

Indeling

Aantal verdiepingen3
Aantal kamers5
Aantal slaapkamers4
Aantal badkamers1

Maandlasten

Ligging Bessenmaat 52

Voorzieningen

Centraal gelegen informatie over de buurt

Aantal inwoners

In de gemeente

46.182

Leeftijd

in percentages van totaal

Huishoudsamenstelling

in percentages van totaal

29%

20% NL

36%

20% NL

35%

20% NL

Vergelijkbaar woningaanbod