Ga naar inhoud

Kerkpad links 1

6587 Middelaar

Verkocht

€ 419.000,- Vrij op naam

  1. Home>
  2. Nieuwbouw>
  3. >
  4. Kerkpad links 1

Uniek kleinschalig nieuwbouwproject in Middelaar in de verkoop.

Wilt u modern wonen te midden van de rust van een klein dorpje met op korte afstand bossen, een recreatieplas, jachthaven, restaurantjes en cafeetjes op 20 autominuten van Nijmegen?

Aan de rand van het dorp Middelaar, tussen uitgestrekte uiterwaarden/Maas en fraaie bossen worden twee tweekappers in de Dorpsstraat en twee split level huizen aan het Kerkpad ontwikkeld.
De woningen zijn zeer energiezuinig, gasloos, voorzien van een warmtepomp en zonnepanelen, waardoor bijna geen energiekosten. De woningen hebben een eigentijdse architectuur met strakke lijnen.

Op een paar minuten fietsen stapt u op het pondje naar Cuijk waar een uitgebreid winkelaanbod is evenals in Gennep en Malden.

Inhoud: circa 568 m3
perceel: circa 160 m2
woonoppervlakte: circa 145 m2

Als een van de twee huizen verkocht is wordt zeker met de bouw gestart zodat de oplevering goed te plannen valt. Omdat het zo’n kleinschalig project is kunt u volop meedenken over oplossingen op maat, zoals indeling en afwerking. Het huis wordt voor u gebouwd naar uw specifieke wensen. Door de degelijke en moderne bouw bent u verzekerd van lage onderhoudskosten en een zeer gunstig energie verbruik.
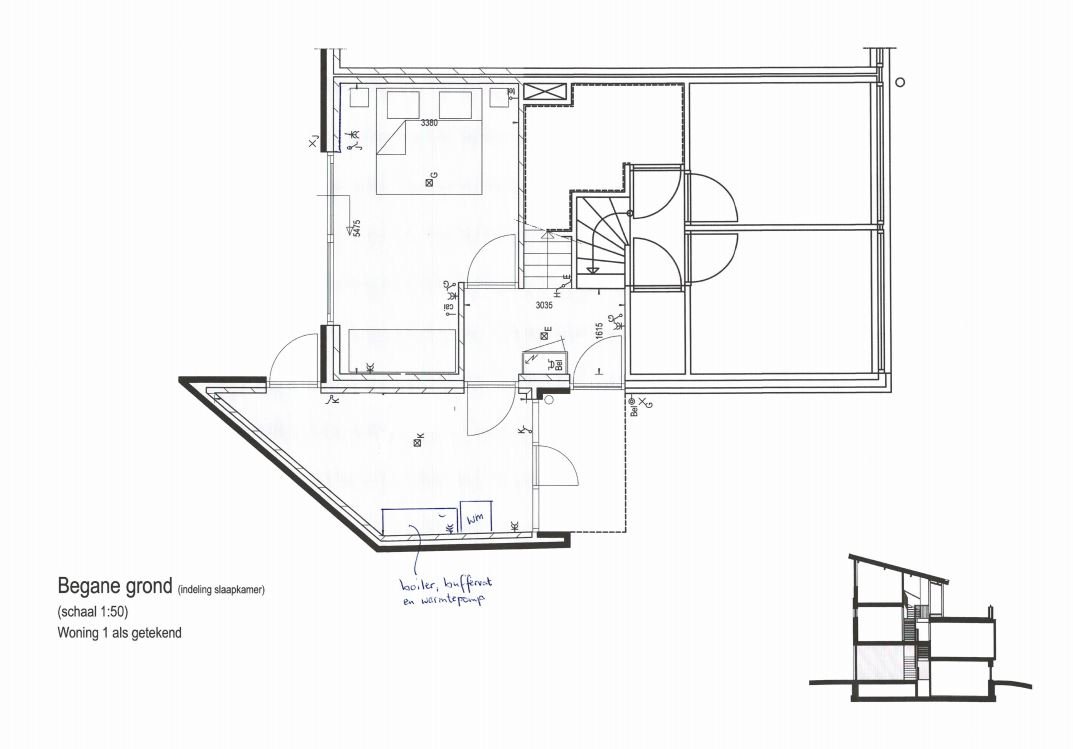
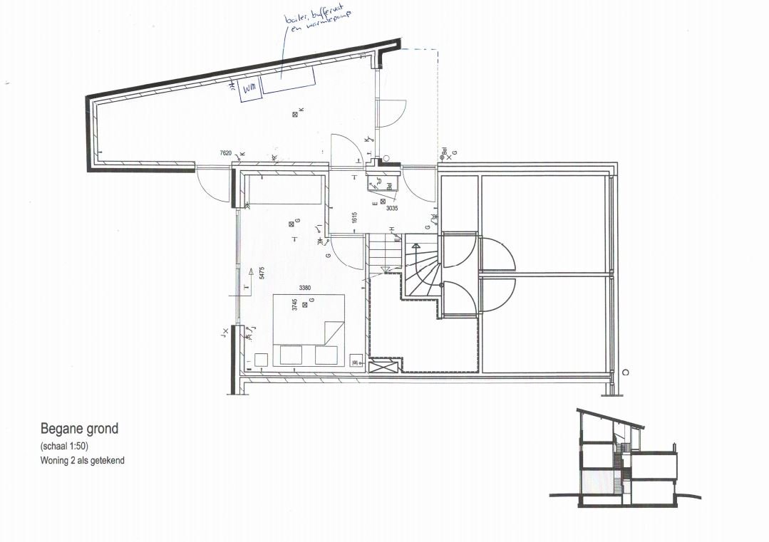
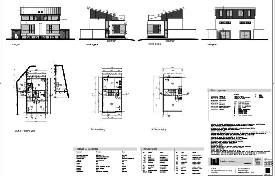
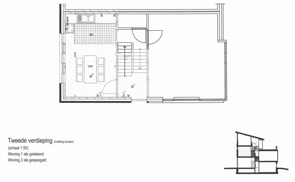
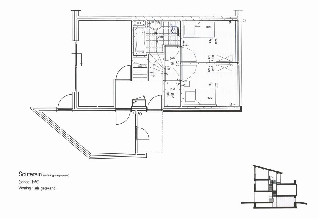
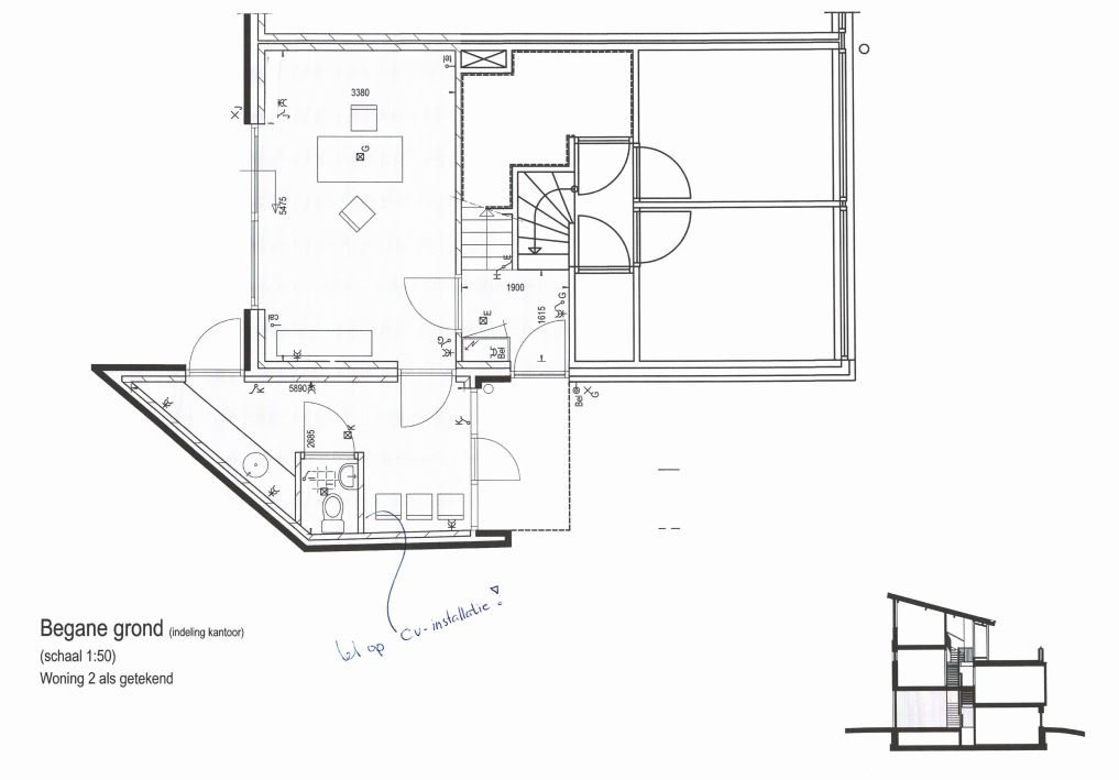
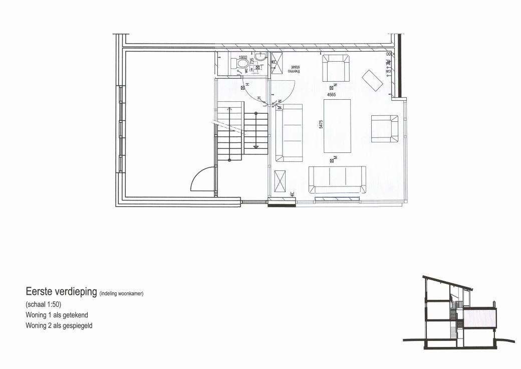
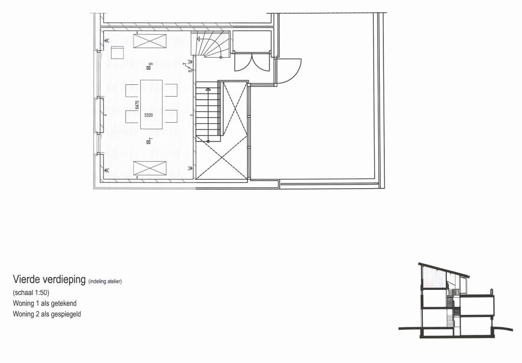
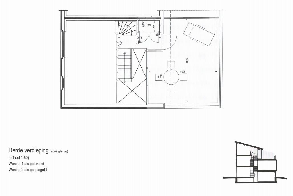
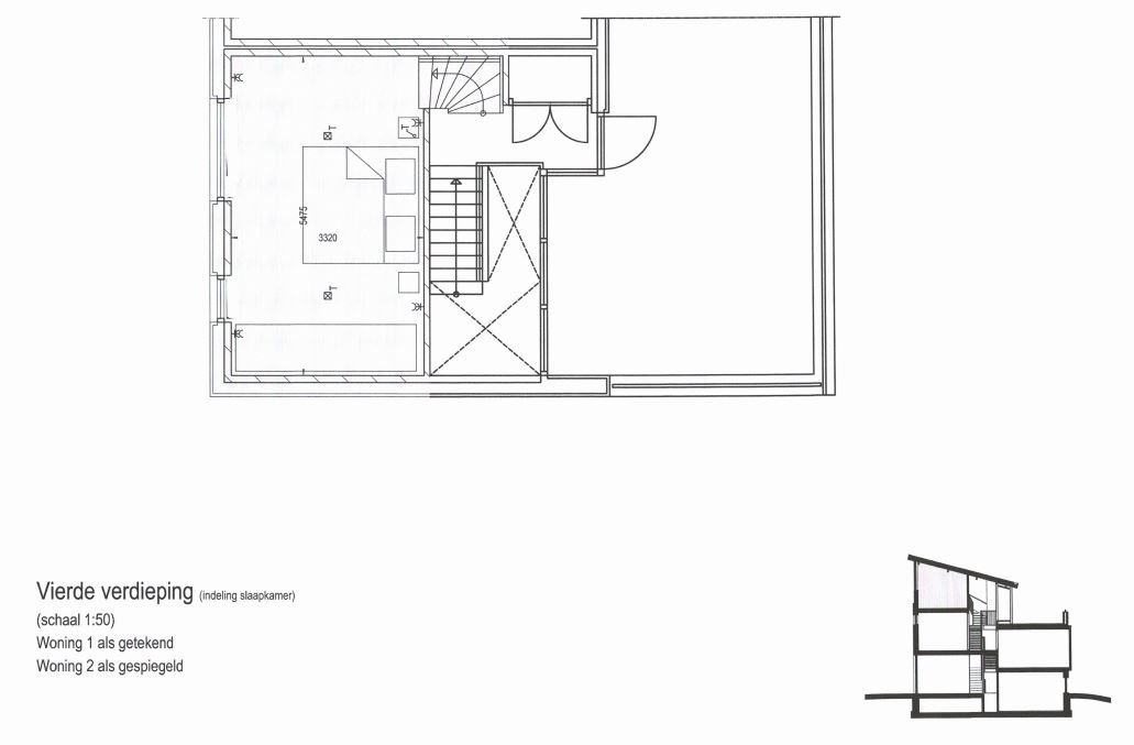
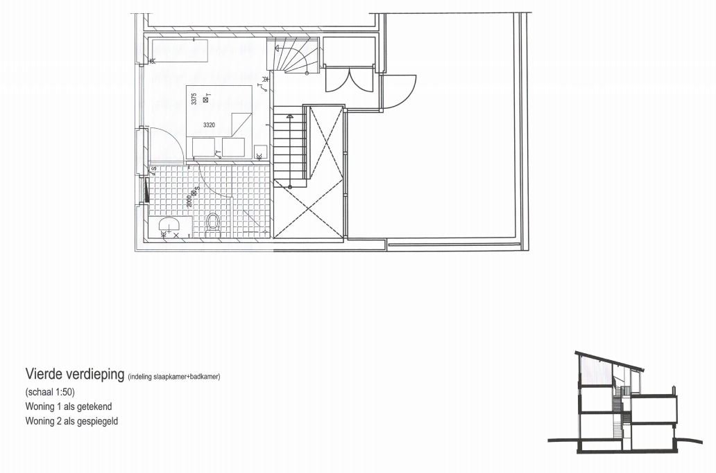
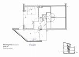
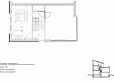
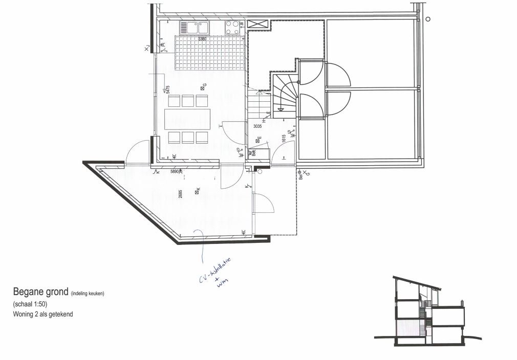
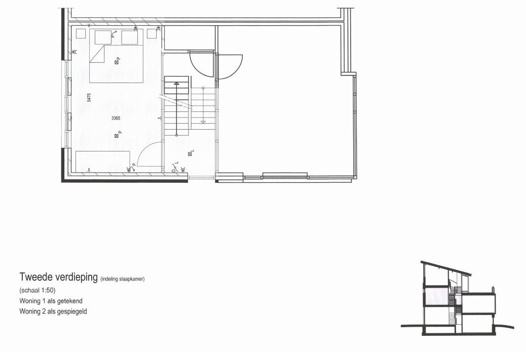
De split level huizen beschikken o.a. over een woonkamer, een woonkeuken, 4 slaapkamers en bovendien is er op de 3e verdieping en groot dakterras met uitzicht over de uiterwaarden. Het ontwerp leent zich ook goed om een extra badkamer te maken of om een praktijk aan huis te houden zonder dat dit ten koste gaat van de privacy.

  • 145 m2
  • 3

Overdracht

StatusVerkocht
Prijs€ 419.000,- Vrij op naam

Oppervlaktes en inhoud

Gebruiksoppervlakte145 m2
Inhoud568 m3

Bouw

SoortEengezinswoning
Dak typeLessenaardak
IsolatievormenVolledig geïsoleerd

Indeling

Aantal verdiepingen6
Aantal kamers7
Aantal slaapkamers3

Maandlasten

Ligging

Marktcijfers van Mook en Middelaar

Gemiddelde verkoopprijs in Mook en Middelaar

Landelijk gemiddelde: € 318.796,-

Gemiddelde vraagprijs in Mook en Middelaar

Landelijk gemiddelde: € 336.310,-

Gemiddelde verkooptijd in Mook en Middelaar

Landelijk gemiddelde: 22

Gemiddeld aangeboden in Mook en Middelaar

Landelijk gemiddelde: 4081

Gemiddeld aantal verkocht in Mook en Middelaar

Landelijk gemiddelde: 8726

Gemiddelde prijs/m2 in Mook en Middelaar

Landelijk gemiddelde: 2.770