Ga naar inhoud

Te koop: woonhuis Sumatraplein 31 6524 KG Nijmegen

Verkocht

€ 1.495.000,- k.k.

Unieke kans!

Schitterende stadsvilla met parkachtige tuin op het zuiden van meer dan 50 meter diep met garage en achterom.
Ook is er een riante voortuin met toegang tot souterrain. Rustig gelegen met fraai uitzicht over plein met voldoende parkeergelegenheid maar toch op loopafstand van het centrum. Met een perceel van 735 mยฒ en een woonoppervlak van ruim 300 mยฒ kunt u in dit pand al uw woonwensen verwezenlijken. Het pand zal nog wel een investering nodig hebben om helemaal naar de wensen van deze tijd te transformeren. Niets moet, alles kan.

* Er is een mogelijkheid om het achterste deel van de tuin te verkopen. Op dit gedeelte zit een woonbestemming en een bouwvlak. Ten behoeve van de bouw van een vrijstaand woonhuis zou een prijs van rond de drie ton realiseerbaar moeten zijn maar dan verliest dit huis haar achterom en garage. Als er verkocht wordt aan de linker buurman kan dat voor een wat lager bedrag maar dan kan de achterom met een auto blijven bestaan inclusief de mogelijkheid van een garage/carport.

Globale indeling:

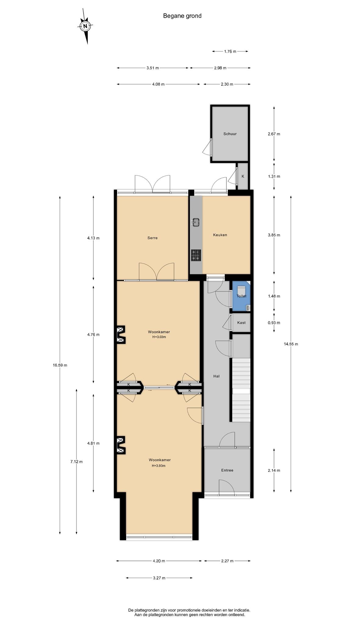
Begane grond: entree / vestibule / hal met toilet, bergkast en deur naar kelder/ zeer ruime kamer en suite met erker en serre, totaal 16,65m lang voorzien van twee marmeren schouwen, open haard en glas in lood deuren / keuken

Eerste verdieping: vier slaapkamers te weten: twee grote met schouw en vaste kasten waarvan รฉรฉn met deuren naar dakterras en twee kleinere kamers.

Tweede verdieping: gedateerde badkamer, twee ruime slaapkamers, douche, kleine slaapkamer.

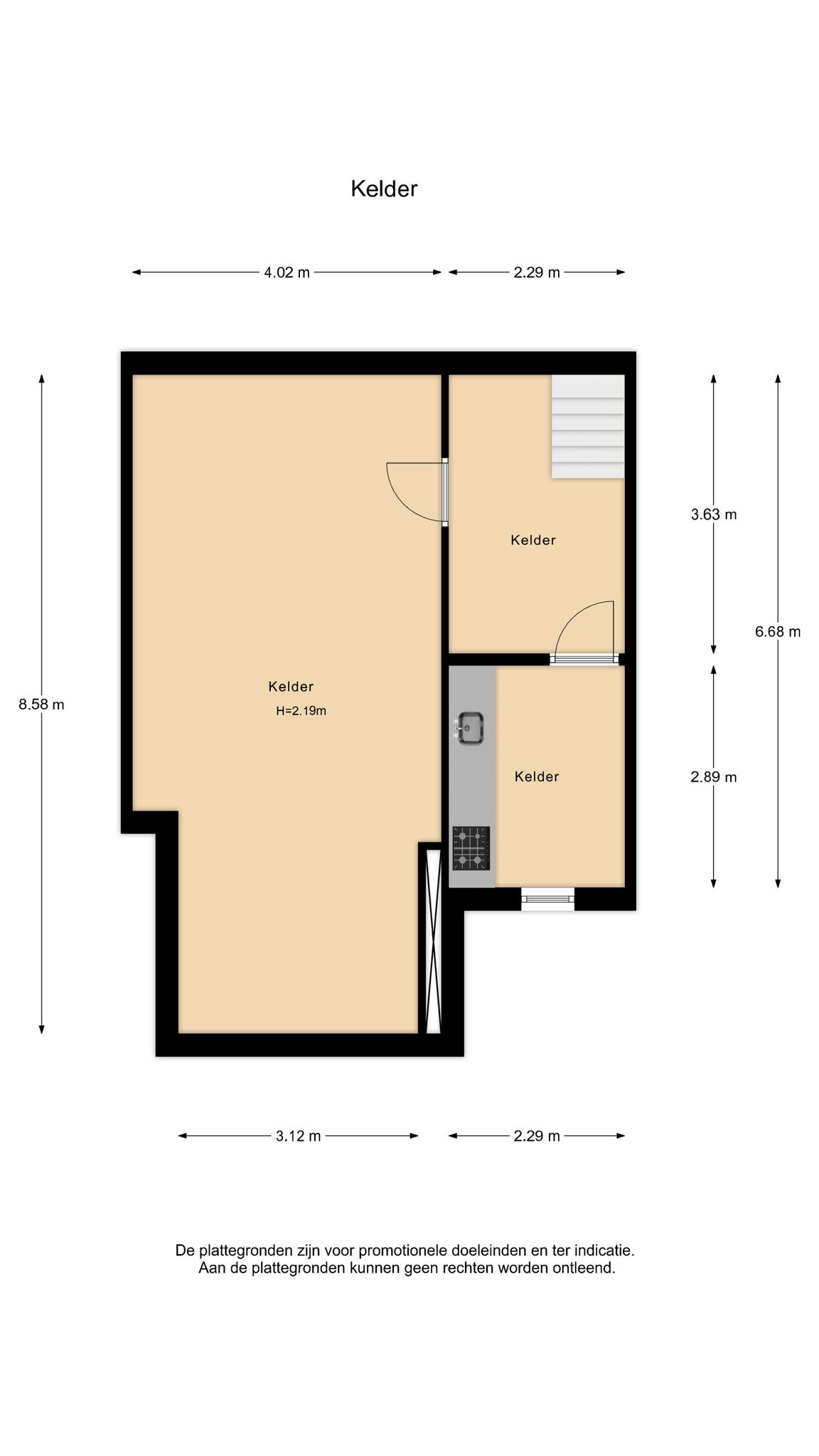
Kelder: provisiekelder met granitovloer en meterkast, keukentje, kamer met buiteningang, totaal ca. 44 mยฒ met een hoogte van 2,18m. Dit souterrain is in het verleden als appartementje bewoond.

Bijzonderheden:
* Verkoopster heeft er nooit zelf gewoond en wil graag in de verkoopakte een niet-bewoningsclausule opnemen alsmede een asbest- en ouderdomsclausule.
* Er is belangstelling om de achterste 30 meter van de tuin te kopen. Prijsindicatie โ‚ฌ 250.000,- k.k. met behoud van achterom met een auto en mogelijkheid voor de bouw van een garage. Er blijft dan nog steeds een tuin van ca. 50m diep over.
* De woning is nog grotendeels in originele staat wat betekent dat er nog veel authentieke elementen in de woning aanwezig zijn.

  • 300 m2
  • 735 m2
  • 7

Kenmerken Sumatraplein 31

Overdracht

Vraagprijs€ 1.495.000,- k.k.
AanvaardingIn overleg

Oppervlaktes en inhoud

Perceel oppervlakte735 m2
Woonoppervlakte300 m2
Inhoud1.132 m3

Bouw

SoortHerenhuis
BouwvormBestaande bouw
Bouwjaar1912
Dak typePlat dak
IsolatievormenGeen isolatie
EnergielabelF

Indeling

Aantal verdiepingen4
Aantal kamers12
Aantal slaapkamers7
Aantal badkamers1

Maandlasten

Ligging Sumatraplein 31

Voorzieningen

Centraal gelegen informatie over de buurt

Aantal inwoners

In de gemeente

173.557

Leeftijd

in percentages van totaal

Huishoudsamenstelling

in percentages van totaal

72%

20% NL

16%

20% NL

12%

20% NL

Vergelijkbaar woningaanbod