Ga naar inhoud

Te koop: appartement Vijzel 8a 6852 BV Huissen

Hermsen Garantiemakelaars Huissen
Neem contact met mij op

Verkocht

€ 249.500,- k.k.

Vijzel 8a Huissen

Dit twee-kamerappartement, gelegen aan een park en op korte afstand van winkelcentrum De Brink, biedt een perfecte combinatie van comfort, rust en een zonnige tuin op het zuiden.

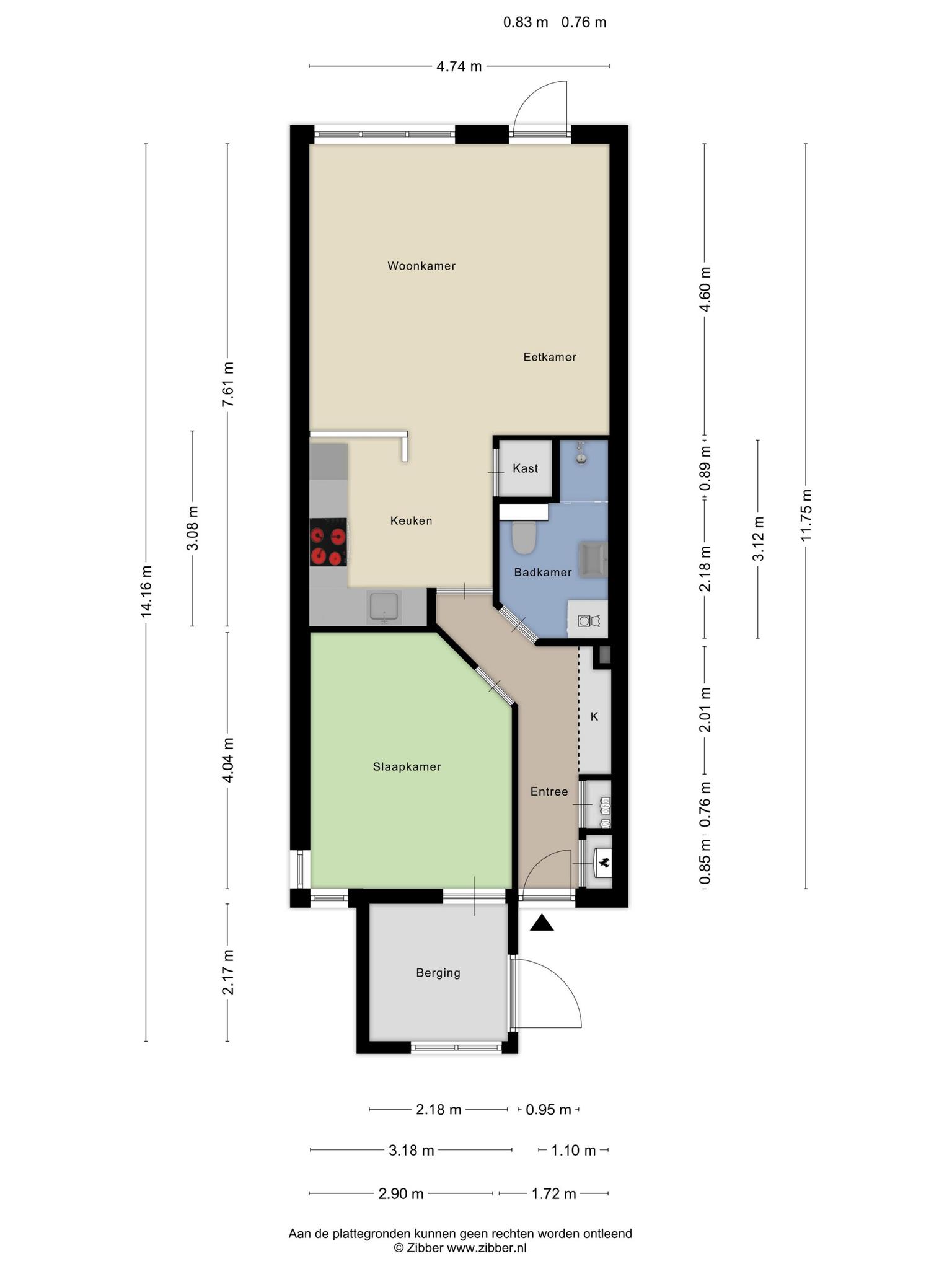
Indeling: Entree / hal met garderobe, CV kast (Vaillant Combi Ketel anno 2018) en meterkast (8 groepen) / slaapkamer met laminaatvloer, airconditioning (anno 2018) en doorgang naar de berging / berging met verwarming en deur naar buiten / luxe badkamer voorzien van toilet met inbouwreservoir, douche met thermostaatkraan, wastafelmeubel, designradiator, wasmachine aansluiting en afzuigsysteem / keuken in hoekopstelling voorzien van keramische kookplaat, afzuigkap, oven, koelkast en vaatwasser / woonkamer met voorraadkast en toegang tot de tuin / aangelegde zonnige achtertuin op het zuiden met achterom (illegaal).

* Bouwjaar 1976
* Woonoppervlakte circa 61 mยฒ
* Inhoud appartement circa 201 mยณ

Bijzonderheden:
* Slaapkamer voorzien van airconditioning die zowel kan verkoelen als verwarmen;
* Fraai aangelegde zonnige tuin op het zuiden met vrij uitzicht;
* Ruime parkeermogelijkheden aan de voorzijde;
* Schilderwerk buitenzijde anno 2024;
* Servicekosten โ‚ฌ 113,70 per maand;
* Deze woning is instapklaar en zo te betrekken!

  • 61 m2
  • 1

Kenmerken Vijzel 8a

Overdracht

Vraagprijs€ 249.500,- k.k.
AanvaardingIn overleg

Oppervlaktes en inhoud

Woonoppervlakte61 m2
Inhoud201 m3

Bouw

SoortBenedenwoning
BouwvormBestaande bouw
Bouwjaar1976
Dak typePlat dak
IsolatievormenDubbelglas
EnergielabelC

Indeling

Aantal verdiepingen1
Aantal kamers2
Aantal slaapkamers1
Aantal badkamers1

Maandlasten

Ligging Vijzel 8a

Voorzieningen

Centraal gelegen informatie over de buurt

Aantal inwoners

In de gemeente

46.182

Leeftijd

in percentages van totaal

Huishoudsamenstelling

in percentages van totaal

29%

20% NL

36%

20% NL

35%

20% NL

Vergelijkbaar woningaanbod