Ga naar inhoud

Te koop: woonhuis Ploeg 4 6852 NG Huissen

Hermsen Garantiemakelaars Huissen
Neem contact met mij op

Verkocht

€ 549.500,- k.k.

Ploeg 4 Huissen

Op zoek naar een ruime woning met de mogelijkheid om gelijkvloers te wonen? Deze geschakelde woning/semi-bungalow met garage, slaapkamer en badkamer op de begane grond biedt u alles wat u zoekt! Gelegen in de rustige, ruim opgezette wijk Hofmeesterij in Huissen, heeft deze woning alles in huis om comfortabel te wonen met diverse voorzieningen, zoals sportaccomodaties, scholen, supermarkt en het centrum van Huissen dichtbij.

Indeling: Entree / hal met kelderkast en meterkast (6 groepen, dubbel 220 , aardlekschakelaar, glasvezelaansluiting) / toilet met inbouwreservoir en fontein / dichte keuken met plavuizenvloer en vloerverwarming voorzien van koelkast, gaskookplaat, afzuigkap, combioven, vriezer, carrouselkast en kunststof aanrechtblad / royale woonkamer met plavuizenvloer met vloerverwarming en schuifpui naar de achtertuin / vanuit de hal is er toegang tot de garage, die tevens de opstelling van de Nefit CV (2009), stortbak, mechanische ventilatie en wasmachine-/drogeraansluiting bevat / slaapkamer / badkamer met ligbad, douche, wastafelmeubel, 2e toilet met inbouwreservoir en design radiator / fraai aangelegde achtertuin met aluminium overkapping en vrijstaande houten berging met elektra.

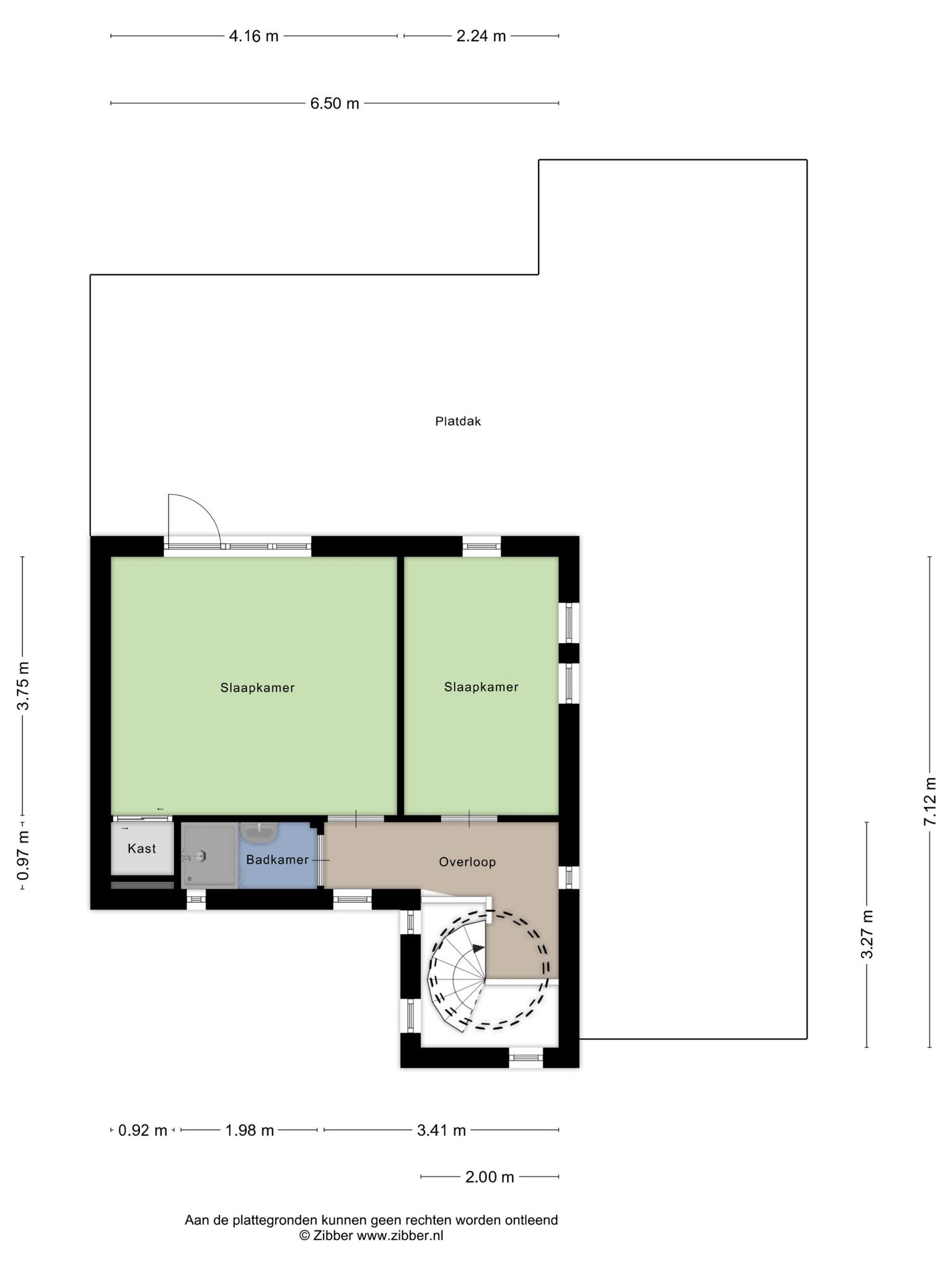
1e verdieping: Overloop / slaapkamer / badkamer met douche en vaste wastafel / ruime slaapkamer met deur naar het platdak.

* Bouwjaar 1994
* Perceeloppervlakte 290 mยฒ
* Woonoppervlakte circa 127 mยฒ
* Inhoud circa 508 mยณ

Bijzonderheden:
* Royale semi-bungalow met slaapkamer en badkamer op de begane grond en 2 slaapkamers en badkamer op de verdieping;
* Royale oprit waar u 2 auto’s naast elkaar kunt parkeren;
* Geรฏsoleerde inpandige garage, geschikt voor diverse doeleinden;
* Fraaie vrije achtertuin op het westen;
* Aluminium overkapping met water- en elektriciteitsaansluiting;
* Vloerverwarming in de woonkamer, keuken en hal;
* Deze woning beschikt over een royale woonkamer met uitzicht op de tuin;
* Dit is uw kans om gelijkvloers te wonen met de auto voor de deur!

  • 127 m2
  • 290 m2
  • 3

Kenmerken Ploeg 4

Overdracht

Vraagprijs€ 549.500,- k.k.
AanvaardingIn overleg

Oppervlaktes en inhoud

Perceel oppervlakte290 m2
Woonoppervlakte127 m2
Inhoud508 m3

Bouw

SoortEengezinswoning
BouwvormBestaande bouw
Bouwjaar1994
Dak typePlat dak
IsolatievormenDakisolatie, Muurisolatie, Vloerisolatie, Dubbelglas
EnergielabelB

Indeling

Aantal verdiepingen2
Aantal kamers4
Aantal slaapkamers3
Aantal badkamers2

Maandlasten

Ligging Ploeg 4

Voorzieningen

Centraal gelegen informatie over de buurt

Aantal inwoners

In de gemeente

46.182

Vergelijkbaar woningaanbod