Ga naar inhoud

Dorpsstraat 34F

6561 CB Groesbeek

Verkocht

€ 345.000,- k.k.

  1. Home>
  2. Bedrijfspanden>
  3. Koop Groesbeek Dorpsstraat 34F

Beleggers opgelet:
Appartementencomplex bestaande uit vier VERHUURDE appartementen met garage/bergruimte en drie ruimten op de begane grond en buitenplaatsje in het centrum van Groesbeek. Huuropbrengst €19.620,-/jaar. De vier zelfstandige appartementen op de eerste verdieping hebben alle een eigen keukenblok, cv ketel, toilet/doucheruimte met wastafel en een bergruimte op tweede verdieping. Gezamenlijke garage/berging op begane grond (ca. 25,5 m²) en grote multifunctionele ruimte met witgoed en cv-ketel-opstelling (ca. 9,52 m²).

Indeling

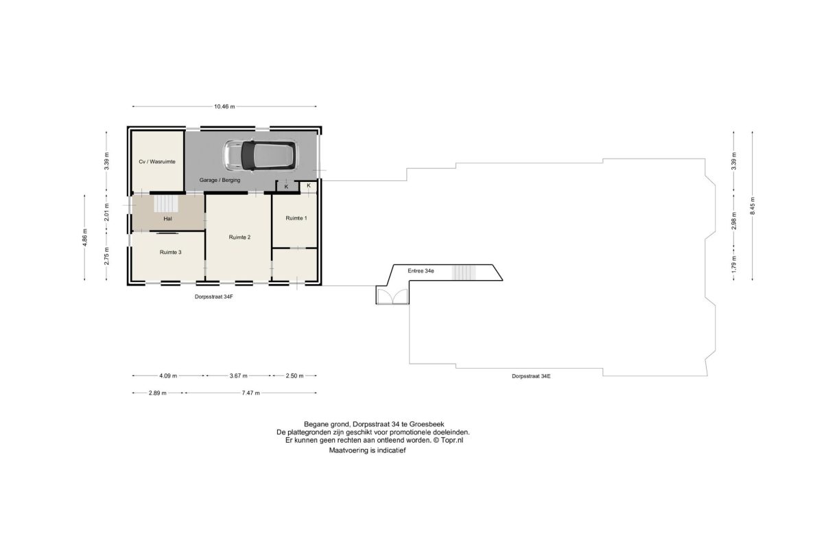
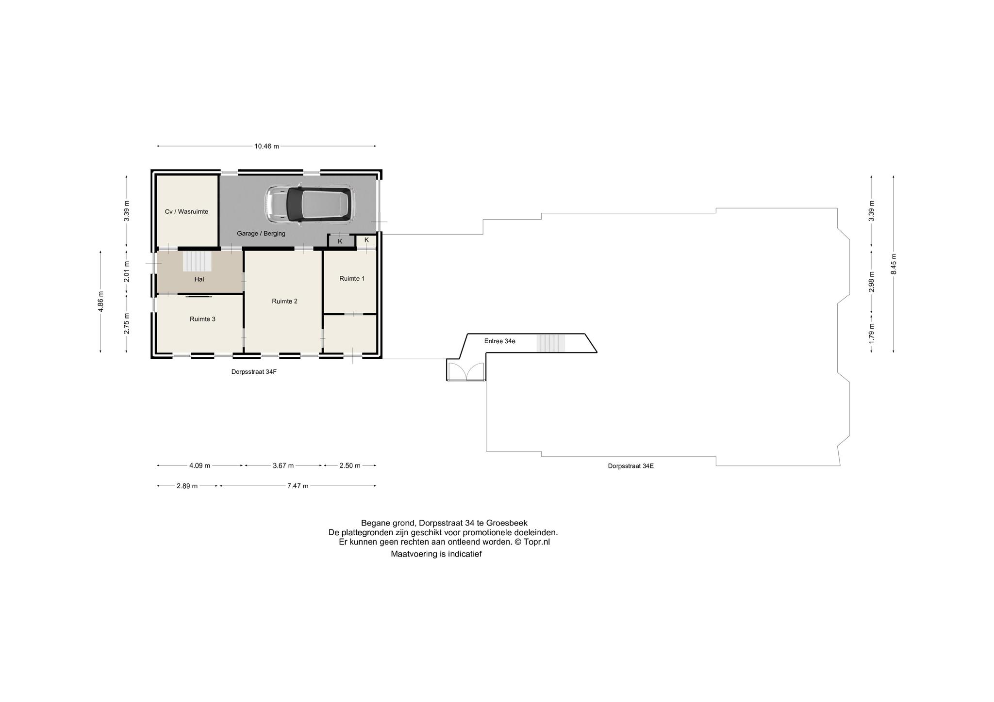
Begane grond:
Entree appartementen via garage/berging met centrale meterkast, gang, berging /cv /wasruimte. De drie ruimten (in totaal ca. 41,68m²) zijn bereikbaar vanuit de zijtuin, de garage/berging en het trappenhuis.

1e verdieping:
Vier zelfstandige appartementen (ca. 14,69m², ca. 18,02 m², ca. 17,9 m² en ca. 21 m²) alle voorzien van woonkamer met keuken, doucheruimte met toilet en wastafel en een vaste trap naar ruimte op de 2e verdieping. De drie ruimten zijn voorheen als bedrijfsruimte gebruikt en hebben een eigen meterkast.

Algemeen:
* Bouwjaar 1928 / woonoppervlak ca. 88 m² / inhoud ca. 719 m³;
* De maatvoering die gebruikt is voor de plattegronden zijn indicatief;
* Op de plattegronden zijn zowel appartement 34E als appartement 34F weergegeven;
* Inclusief lopende huurovereenkomsten huurders;
* Voorschot verbruikskosten ca 85,-/maand/appartement;
* Huuropbrengst €19.620,-/jaar;
* Vraagprijs € 345.000,- kosten koper.

  • m2

Kenmerken Dorpsstraat 34F

Overdracht

StatusVerkocht
Prijs€ 345.000,- k.k.
AanvaardingIn overleg

Oppervlaktes en inhoud

Soort ObjectBelegging
Oppervlakte m2

Parkeergelegenheid

Parkeerplaatsen1

Bouw

BouwvormBestaande bouw
Bouwjaar1928
Bouwjaar toelichting

Overig

LocatieWINKELGEBIED_STADSCENTRUM
Onderhoud binnenGoed
Onderhoud buitenGoed

Ligging Dorpsstraat 34F

Vergelijkbaar bedrijfsaanbod