Ga naar inhoud

Te koop: woonhuis Bevelandselaan 7 6093 GW Heythuysen

Beschikbaar

Bezichtiging plannen

€ 375.000,- k.k.

Bevelandselaan 7 te Heythuysen

Op een rustige, geliefde locatie nabij het centrum van Heythuysen staat deze goed onderhouden geschakelde twee-onder-één-kapwoning/semi-bungalow met eigen oprit, carport en zonnige achtertuin met houten berging. De woning combineert het comfort van gelijkvloers wonen met extra ruimte op de verdieping – ideaal voor senioren, starters of een gezin!
Heythuysen is centraal gelegen nabij Roermond en Weert en zeer centraal t.o.v. uitvalswegen.

Indeling: Entree / hal met garderobe, meterkast, bergkast met opstelling voor wasmachine en droger / toilet met inbouwreservoir en fontein / ruime woonkamer met laminaatvloer, convectorput, sfeervolle schouw met houtkachel en open wenteltrap naar de verdieping / keuken met tegelvloer in hoekopstelling voorzien van gaskookplaat, afzuigkap, oven, koelkast en een vaatwasser / praktische bijkeuken met witgoedaansluitingen en bergruimte / vanuit de hal kunt u naar de slaapkamer / slaapkamer met directe toegang tot de tuin en de badkamer / luxe badkamer voorzien van een inloopdouche, wastafelmeubel, 2e toilet met inbouwreservoir en design radiator / fraai aangelegde zonnige achtertuin met overkapping, vijverpartij en een houten berging.

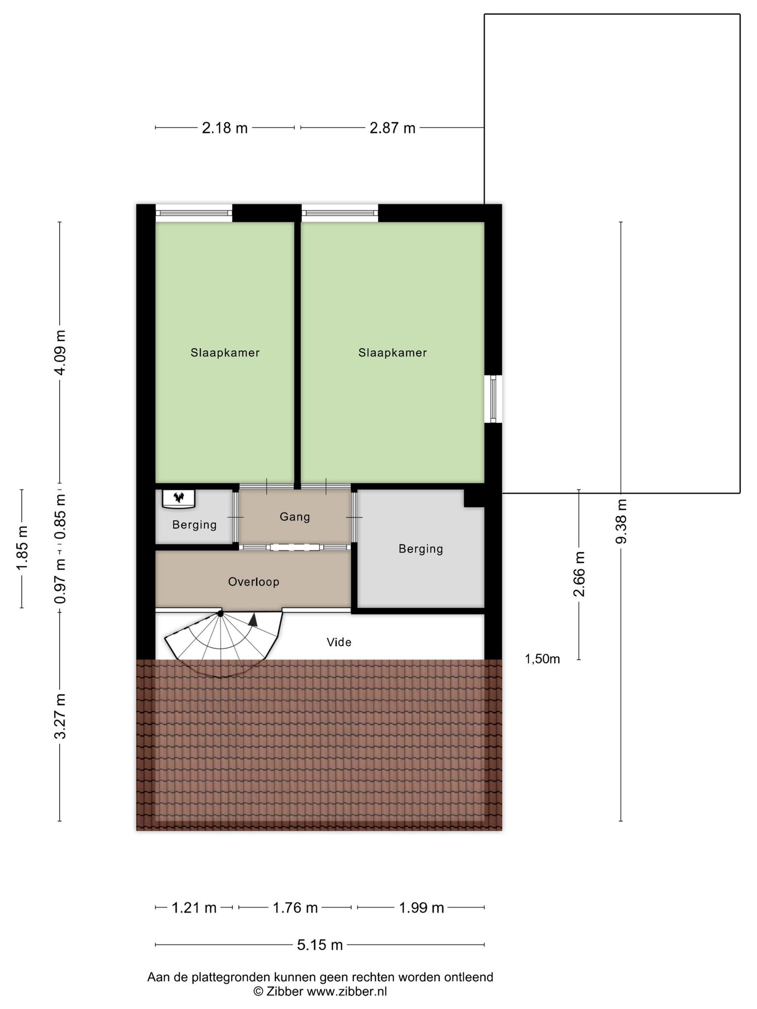
1e verdieping: Overloop met vide / berging met CV-opstelling (Intergas Kompakt HRE anno 2023) / berging / twee slaapkamers met beide een kleine vliering met extra opslagruimte.

* Bouwjaar 1978
* Perceeloppervlakte 239 m²
* Woonoppervlakte ca. 108 m²
* Inhoud ca. 384 m³

Bijzonderheden:
* Semi-bungalow met slaapkamer en badkamer op de begane grond;
* Twee slaapkamers en veel bergruimte op de verdieping, badkamer mogelijk, leidingwerk reeds aanwezig;
* Eigen oprit met parkeergelegenheid voor 2 auto’s en carport;
* Rustige ligging op loopafstand van het gezellige centrum van Heythuysen;
* Dit is uw kans om gelijkvloers te wonen met de auto voor de deur!

  • 108 m2
  • 239 m2
  • 3

Kenmerken Bevelandselaan 7

Overdracht

Vraagprijs€ 375.000,- k.k.
AanvaardingIn overleg

Oppervlaktes en inhoud

Perceel oppervlakte239 m2
Woonoppervlakte108 m2
Inhoud384 m3

Bouw

SoortEengezinswoning
BouwvormBestaande bouw
Bouwjaar1978
Dak typeLessenaardak
IsolatievormenDakisolatie, Gedeeltelijk dubbelglas
EnergielabelC

Indeling

Aantal verdiepingen3
Aantal kamers4
Aantal slaapkamers3
Aantal badkamers1

Maandlasten

Ligging Bevelandselaan 7

Voorzieningen

Centraal gelegen informatie over de buurt

Aantal inwoners

In de gemeente

35.878

Leeftijd

in percentages van totaal

Huishoudsamenstelling

in percentages van totaal

31%

20% NL

36%

20% NL

33%

20% NL

Vergelijkbaar woningaanbod